リバーサイドともぶち第一住宅第23号棟 2,890万円


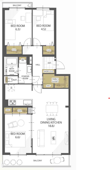
大阪市都島区友渕町1丁目 5階建て3階部分、南向きバルコニーで採光良好です。専有面積85.01㎡、LDKは広々18.8帖あります。大阪メトロ谷町線「都島」駅徒歩18分。全棟総戸数836戸のビッグコミュニティです。リフォーム済の綺麗なお部屋です。主なリフォーム内容は、システムキッチン、ユニットバス、洗面化粧台、トイレ、建具、配管更新、クロス貼替、フローリング貼替、ハウスクリーニング等です。
| 所在地 | 大阪市都島区友渕町1丁目 |
| 交通 | 大阪メトロ谷町線 「都島」駅 徒歩18分 |
| 専有面積 | 85.01㎡ |
| バルコニー面積 | 12.31㎡ (南向き) |
| 間取り | 3LDK |
| 築年月 | 1983年7月 |
| 構造等 | RC造 5階建 3階部分 |
| 総戸数 | 80戸 |
| 用途地域 | 第二種中高層住居専用地域 |
| 土地権利 | 所有権 |
| 分譲会社 | 住宅都市整備公団 |
| 施工会社 | |
| 管理組合 | 有 |
| 管理形態/管理会社 | 全部委託(日勤)/ 日本ハウズイング㈱ |
| 管理費 | 5,000円 |
| 修繕積立金 | 7,800円 |
| 駐車場 | 有 月額:15,000円 |
| 現況 | 空家 |
| 引渡し | 即時 |
| 備考 | エレベーター:無 ペット飼育:不可 |


