淀川パークハウス4号棟 2,080万円











大阪市旭区太子橋3丁目 ペット飼育可(規約による制限有)です。大阪メトロ谷町線「太子橋今市」駅徒歩約8分、京阪本線「守口市」駅徒歩11分。2路線利用可能です。2025年9月、リフォーム完成済です。主なリフォーム内容は、システムキッチン、ユニットバス、洗面化粧台、トイレ、シューズインクローゼット、給湯器、フローリング、クロス、玄関フロアタイル等です。トランクルームがあります。エレベーター非停止階です。
| 所在地 | 大阪市旭区太子橋3丁目 |
| 交通 | 大阪メトロ谷町線 「太子橋今市」駅 徒歩約8分 京阪本線 「守口市」駅 徒歩11分 |
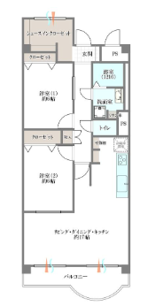
| 専有面積 | 72.51㎡ |
| バルコニー面積 | 7.70㎡ (南西向き) |
| 間取り | 2LDK |
| 築年月 | 1973年3月 |
| 構造等 | SRC造 11階建 2階部分 |
| 総戸数 | 140戸 |
| 用途地域 | 第二種中高層住居専用地域、第一種住居地域 |
| 土地権利 | 所有権 |
| 分譲会社 | |
| 施工会社 | |
| 管理組合 | 有 |
| 管理形態/管理会社 | 全部委託(日勤)/ 三菱地所コミュニティ㈱ |
| 管理費 | 8,710円 |
| 修繕積立金 | 12,660円 |
| 駐車場 | 月額:18,000円 要確認 |
| 現況 | 空家 |
| 引渡し | 即可 |
| 備考 | ペット飼育可(規約による制限有) エレベーター非停止階 |


